0.02s打一个点.每打5个点取一个计数点.A. B.C.D是四个计数点.则B点通过打点计时器 时的速度大小是 m/s.该物体的加速度为 m/s2. 查看更多

 

题目列表(包括答案和解析)

电磁打点计时器是一种计时装置,请根据电磁打点计时器的相关实验回答下列问题:

(1)。在验证机械能守恒定律的实验中,质量m=1kg的重锤自由下落,在纸带上打出一系列的点,如图所示,(相邻计数点的时间间隔为0.02s),单位:cm,g=10m/s2。那么: ①纸带的___端与重物相连。(填“左”或“右”)②从起点O到打下计数点B的过程中,重力势能的减小量ΔEP=____,物体动能的增加量ΔE K=____。(取三位有效数字)③通过计算,数值ΔEP 与ΔE K并不相等,这是因为________。

(2).某同学在测定匀变速直线运动的加速度时,得到了几条较为理想的纸带。他已在每条纸带上按每5个点取好计数点,即两计数点之间的时间间隔为0.1s,依打点先后编为0、1、2、3、4、5。由于不小心,几条纸带都被撕断了,如图所示,请根据给出的A、B、C、D四段纸带回答①B、C、D三段中选出从纸带A上撕下的那段应该是____。②打A纸带时,物体的加速度大小是_____m/s2。(取三位有效数字)

查看答案和解析>>

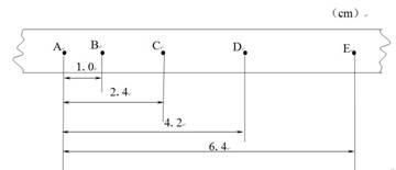
在用打点计时器研究匀变速直线运动规律的实验中每隔0.02s打一个点,每隔5个连续点取一个计数点,计数点A、B、C、D、E的位置如图所示,则物体运动的加速度为___________m/s2,C点时刻的速度为                m/s。

查看答案和解析>>

在用打点计时器研究匀变速直线运动规律的实验中每隔0.02s打一个点,每隔5个连续点取一个计数点,计数点A、B、C、D、E的位置如图所示,则物体运动的加速度为___________m/s2 ,C点时刻的速度为                 m/s。

 

 

查看答案和解析>>

在用打点计时器研究匀变速直线运动规律的实验中每隔0.02s打一个点,每隔5个连续点取一个计数点,计数点A、B、C、D、E的位置如图所示,则物体运动的加速度为___________m/s2,C点时刻的速度为                m/s。

查看答案和解析>>

在用打点计时器研究匀变速直线运动规律的实验中每隔0.02s打一个点,每隔5个连续点取一个计数点,计数点A、B、C、D、E的位置如图所示,则物体运动的加速度为___________m/s2 ,C点时刻的速度为                 m/s。

查看答案和解析>>


同步练习册答案