相关习题
 0  80419  80427  80433  80437  80443  80445  80449  80455  80457  80463  80469  80473  80475  80479  80485  80487  80493  80497  80499  80503  80505  80509  80511  80513  80514  80515  80517  80518  80519  80521  80523  80527  80529  80533  80535  80539  80545  80547  80553  80557  80559  80563  80569  80575  80577  80583  80587  80589  80595  80599  80605  80613  235360 

科目: 来源:2011-2012学年云南省曲靖市师宗三中九年级(上)月考物理试卷(一)(11--13章)(解析版) 题型:填空题

2008年1月南方发生罕见的雪灾.不少汽车在紧急刹车时,要滑行一段距离才停下来,甚至发生翻车.这是由于汽车具有    的原因,为了避免此类事故的发生,请给司机提出一条合理建议   

查看答案和解析>>

科目: 来源:2011-2012学年云南省曲靖市师宗三中九年级(上)月考物理试卷(一)(11--13章)(解析版) 题型:填空题

使用已经调好的天平,按规范的操作来称量物体的质量,添加一些砝码后,若指针微偏左,则下一步应该   

查看答案和解析>>

科目: 来源:2011-2012学年云南省曲靖市师宗三中九年级(上)月考物理试卷(一)(11--13章)(解析版) 题型:填空题

如图所示,表示用滑轮或滑轮组提起同一重物的几种方法其中拉力F最大的是    ,最小的是    (动滑轮重和摩擦忽略不计):

查看答案和解析>>

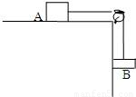
科目: 来源:2011-2012学年云南省曲靖市师宗三中九年级(上)月考物理试卷(一)(11--13章)(解析版) 题型:填空题

如图所示,物体A和B受到的重力分别是10N和12N,A在B的作用下在桌面上作匀速直线运动,则物体A受到的摩擦力为    N,方向   

查看答案和解析>>

科目: 来源:2011-2012学年云南省曲靖市师宗三中九年级(上)月考物理试卷(一)(11--13章)(解析版) 题型:解答题

抛出手的小球在空气中飞行,如图所示,不计空气阻力,作出小球所受到的力的示意图.

查看答案和解析>>

科目: 来源:2011-2012学年云南省曲靖市师宗三中九年级(上)月考物理试卷(一)(11--13章)(解析版) 题型:解答题

如图所示,杠杆在拉力F作用下水平静止,在图上分别作出拉力F和重力G的力臂.

查看答案和解析>>

科目: 来源:2011-2012学年云南省曲靖市师宗三中九年级(上)月考物理试卷(一)(11--13章)(解析版) 题型:解答题

“在水平木板上铺上粗糙程度不同的材料,小车自斜面顶端由静止开始滑下,比较小车沿水平面运动的距离”(如图所示).伽俐略、牛顿等科学家曾多次做过类似实验,并在此基础上分析推导出著名的牛顿第一定律.
请回答下列问题:
(1)为了得出科学结论,三次实验中小车每次都从斜面上同一位置释放,使小车运动到斜面底端时的速度______(选填“相等”或“不相等”).
(2)三次实验中,小车在水平面上受到的摩擦力最大的是第______次,这说明小车受到摩擦力的大小与接触面的______有关.
(3)进一步推理可知,若水平面绝对光滑(小车不受阻力),则小车会在水平面上做______运动.

查看答案和解析>>

科目: 来源:2011-2012学年云南省曲靖市师宗三中九年级(上)月考物理试卷(一)(11--13章)(解析版) 题型:解答题

为了测定某种金属块的密度,实验的主要过程如下,但顺序是混乱的.
A、观测记录量筒里放入金属块后水面的刻度值(如图);

B、观测记录量筒水面的刻度值(如图);

C、把金属块放入天平的左盘,在天平右盘放入砝码使横梁平衡;
D、记录天平右盘中砝码的质量(如图),把砝码放回盒内;

E、调节托盘天平使横梁平衡;
F、计算出金属块的体积.
请回答下列问题:
(1)请按合理的实验步骤将上述实验过程的字母符号依次写出来______;
(2)金属块的体积是______.
(3)金属块的质量是______.
(4)金属块的密度是______.

查看答案和解析>>

科目: 来源:2011-2012学年云南省曲靖市师宗三中九年级(上)月考物理试卷(一)(11--13章)(解析版) 题型:解答题

学校物理兴趣小组的同学,为了判断一个铝球是否是实心的,他们对铝球进行了测量,测得铝球质量为27g,体积为30ml(ρ=2.7×103kg/m3).求:①该铝球是空心的还是实心的?②若铝球是空心的,空心部分的体积是多少?③若在空心部分注满水,球的总质量是多少?

查看答案和解析>>

科目: 来源:2011-2012学年云南省曲靖市师宗三中九年级(上)月考物理试卷(一)(11--13章)(解析版) 题型:解答题

一列火车以54km/h的速度匀速行驶通过一个长度为120m长的山洞,所需要的时间为20s,求火车的长度是多少?

查看答案和解析>>

同步练习册答案