题目列表(包括答案和解析)

 0  158367  158375  158381  158385  158391  158393  158397  158403  158405  158411  158417  158421  158423  158427  158433  158435  158441  158445  158447  158451  158453  158457  158459  158461  158462  158463  158465  158466  158467  158469  158471  158475  158477  158481  158483  158487  158493  158495  158501  158505  158507  158511  158517  158523  158525  158531  158535  158537  158543  158547  158553  158561  447348 

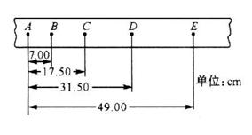
21.在研究匀变速直线运动的实验中,如图所示,为一次记录小车运动情况的纸带,图中A、B、C、D、E为相邻的记数点,相邻记数点间的时间间隔T=0.1s。

(1)计算A、B、C、D、E各点的瞬时速度,

(2)在下图所示的坐标中作出小车的v一t图象,并根据图线求出a。

 

试题详情

20.甲乙两车在一平直道路上同向运动,其图像如图所示,图中的面积分别为.初始时,甲车在乙车前方处---------------------------------------(    )

A.若,两车不会相遇

B.若,两车相遇2次

C.若,两车相遇1次

D.若,两车相遇1次

 

六、计算题(本题共2小题,其中21题11分、22题14分。解题过程中要有必须的文字说明及相关的原始公式,直接写出结果按零分计算。)

试题详情

19.如图所示,轻质弹簧连接A、B两物体,A放在水平地面上,B的上端通过细线挂在天花板上;已知A的重力为8N、B的重力为6N、弹簧的弹力为4N。则地面受到的压力大小和细线受到的拉力大小可能是------------------------------------------------------------------------------------------------(    )

A.18N和10N   

B.4N和10N  

C.12N和2N  

   D.14N和2N

试题详情

18. 如图所示,光滑斜面AE被分成四个相等的部分,一物体由A点从静止释放,下列结论中正确的是---------------------------------------------------------------------(    )

A.物体到达各点的速率

B.物体到达各点所经历的时间:

C.物体从A到E的平均速度

D.物体通过每一部分时,其速度增量

试题详情

17.做匀加速直线运动的物体的加速度为3 m/s2,对任意1 s来说,下列说法中正确的是--(    )

A.某1 s末的速度比该1 s初的速度总是大3 m/s             

B.某1 s末的速度比该1 s初的速度总是大3倍

C.某1 s末的速度比前1 s末的速度大3 m/s 

D.某1 s末的速度比前1 s初的速度大6 m/s

试题详情

16.从静止开始的匀加速直线运动的物体经时间T 通过位移x1到达A点,接着在时间T内又通过位移x2到达B点,则以下判断正确的是------------------------------------------------------(    )

A.物体在A点的速度大小为               B.物体运动的加速度为

C.物体运动的加速度为                   D.物体在B点的速度大小为

试题详情

22.一平直铁路与旁边一条公路平行,正当列车以20m/s的初速度前进并以-0.1m/s2的加速度刹车时,前方155m处的自行车正以4m/s的速度匀速向同一方向运动,试判断列车会不会追上自行车,如果追不上,求两车相距最近时的距离;如果追上,从刹车时开始计时,求列车与自行车相遇的时间。

w.w.^w.k.&s.5*高.考.资.源.网

B类题

五、多项选择题(本题共5小题,每小题5分,共计25分。每小题有多个选项符合题意。全部选对的得5分,选对但不全的得2分,错选或不选的得0分。)

试题详情

21.某同学在做《探究小车速度随时间变化的规律》实验时,用打点计时器记录了被小车拖动的纸带的运动情况,如下图所示,在纸带上确定出A、B、C、D、E、F、G共7个计数点。每两个计数点之间的时间间隔为0.10s。根据纸带上各个计数点间的距离,每隔0.10s测一次速度,计算出打下各计数点时小车的瞬时速度,如表中所示

 

计数点
B
C
D
E
F
瞬时速度m/s
0.192
0.384
0.576
0.768
0.960

(1)将表中各个时刻的瞬时速度标在直角坐标系中,并画出小车的瞬时速度随时间变化的关系图线。

(2)由图像求出小车运动的加速度。

(3)推算出计数点G的瞬时速度。

试题详情

20.做匀加速直线运动的物体的加速度为3 m/s2,对任意1 s来说,下列说法中正确的是--(    )

A.某1 s末的速度比该1 s初的速度总是大3 m/s             

B.某1 s末的速度比该1 s初的速度总是大3倍

C.某1 s末的速度比前1 s末的速度大3 m/s 

D.某1 s末的速度比前1 s初的速度大6 m/s

试题详情

19.如图所示,静止于水平地面上的重为G的木块,受到一个竖直向上,并逐渐增大的力F的作用,但F始终小于G,则下列说法中不正确的是-----------------------------w.w.^w.k.&s.5*高.考.资.源.网(    )

A.木块对地面的压力就是重力                   

B.地面对木块的支持力随F增大而增大

C.木块对地面的压力随F增大而减小

D.木块受到的重力随F增大而减小

试题详情


同步练习册答案