题目列表(包括答案和解析)

 0  64566  64574  64580  64584  64590  64592  64596  64602  64604  64610  64616  64620  64622  64626  64632  64634  64640  64644  64646  64650  64652  64656  64658  64660  64661  64662  64664  64665  64666  64668  64670  64674  64676  64680  64682  64686  64692  64694  64700  64704  64706  64710  64716  64722  64724  64730  64734  64736  64742  64746  64752  64760  447348 

9、下面从左边到右边的变形中,是因式分解的是        (   )

(A)x2-x-2 = x(x -1)-2      (B)(a +b)(a-b)=a2-b2

(C) x2-9 = (x +3)(x -3)     (D) x -1= x

试题详情

8.运用乘法公式计算正确的是                (  )

(A) (2x-1)2=4x2-2x+1;    (B) (y-2x)2=4x2-4xy+y2;

(C) (a+3b)2=a2+3ab+9b2;   (D) (x+2y)2=x2+4xy+2y2

试题详情

7.下列计算正确的是                    (  )

  (A) 2a2·2a2=4a2  (B) 2x2·2x3=2x5   (C) x·y=(xy)4   (D) (-3x)2=9x2

试题详情

6.下列说法正确的是                    (   )

  (A)  x=1是不等式-2x<1的解  (B)  x=1是不等式-2x<1的解集

(C)  x=-是不等式-2x<1的解  (D) 不等式-2x<1的解是x=1

试题详情

5.三个连续自然数的和小于11,这样的自然数组共有组数为  (  )

(A)  4     (B)  3     (C)  2   (D)  1

试题详情

4.下列不等式一定成立的是                 (  )

(A)   (B)   (C)   (D)

试题详情

3、的平方根是                   (  )

  (A)     (B)    (C)     (D) 

试题详情

2、下列语句中正确的是                   (  ) 

(A)   的平方根是     (B)  的平方根是

(C)   的算术平方根是   (D)  的算术平方根是

试题详情

1、在下列各数0.51525354……、、0.22……、、2.101001000……、无理数的个数是                (  )

 (A) 1      ( B)  2    (C)  3     (D)  4

试题详情

线
 

 
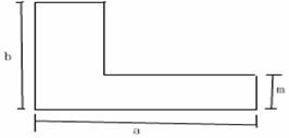
1、古人云:凡事宜先预后立。我们做任何事都要先想清楚,然后再动手去做,才可能避免盲目性。一天,需要小华计算一个L形的花坛的面积,在动手测量前小明依花坛形状画了如下示意图,并用字母表示了将要测量的边长(如图所标示),小明在列式进行面积计算时,发现还需要再测量一条边的长度,你认为他还需测哪条边的长度?请你在图中标示出来,并用字母n表示,然后再求出它的面积。


 


 
2、有二张长方形的纸片(如图⑵),把它们叠合成图⑶的形状,这时图形的面积是多少?当a=4,b=2,c=0.5,d=5时,图形的面积是多少?


 

 

 

试题详情


同步练习册答案