题目列表(包括答案和解析)

 0  169440  169448  169454  169458  169464  169466  169470  169476  169478  169484  169490  169494  169496  169500  169506  169508  169514  169518  169520  169524  169526  169530  169532  169534  169535  169536  169538  169539  169540  169542  169544  169548  169550  169554  169556  169560  169566  169568  169574  169578  169580  169584  169590  169596  169598  169604  169608  169610  169616  169620  169626  169634  447348 

17..(10分)在海滨游乐场里有一种滑沙的游乐活动。如图所示,人坐在滑板上从斜坡的高处由静止开始滑下,滑到斜坡底端B点后沿水平的滑道再滑行一段距离到C点停下来。若某人和滑板的总质量m=60kg,滑板与斜坡滑道和水平滑道间的动摩擦因数相同,大小为μ=0.50,斜坡的倾角θ=37°。斜坡与水平滑道间是平滑连接的,整个运动过程中空气阻力忽略不计,重力加速度g取

(1)  人从斜坡滑下的加速度为多大?

(2)  若由于场地的限制,水平滑道的最大距离为L=20m,则人在斜坡上滑下的距离AB应不超过多少?()

 

试题详情

16. (10分)火车以速率向前行驶,司机突然发现在前方同一轨道上距车为处有另一火车,它正沿着相同的方向以较小的速率作匀速运动,于是司机立即使车作匀减速运动,加速度大小为,要使两车不致相撞,求出应满足的关系式.

试题详情

15. 利用水滴下落可以测量出重力加速度g,调节水龙头,让水一滴一滴地流出。在水龙头的正下方放一盘子,调节盘子的高度,使一个水滴碰到盘子时,恰好有另一个水滴从水龙头开始下落,而空中还有两个正在下落的水滴。测出水龙头滴水处到盘子的高度为H,再用秒表测量时间,从第一滴水离开龙头开始,到第N滴水落至盘中,共用时间为T。当第一滴水落到盘子时,第二滴水离盘子的高度为      ,重力加速度为      

试题详情

14.现用打点计时器测定物体作匀变速直线运动的加速度,实验时,若交流电的频率低于50 Hz,最后计算时仍按50Hz,所测得的加速度的值将偏______。(填“大”或“小”)如图所示是用打点计时器打出的一条纸带,其计数周期为T,运动加速度和打D点时瞬时速度分别用a和vD表示,下列选项正确的是   

试题详情

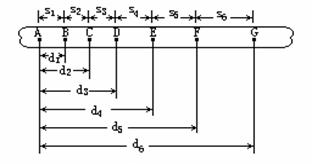
13.有一游标卡尺,主尺的最小分度为 1mm,游标尺上有20个等分刻度,用该卡尺测长度时,可以准确到   mm,如图所 示工件的长度为   mm.

试题详情

12. 子弹恰能穿过3块叠放在一起固定在水平面上的木板(即穿过第3块木板后子弹速度减小为零).如图所示。设子弹在木板里运动的加速度是恒定的,子弹依次穿过3块木板所用的时间之比为1:2:3,则木板厚度之比为_____________.

试题详情

11.如图所示,用一根长为L的细绳一端固定在O点,另一端悬挂质量为m的小球A,为使细绳与竖直方向夹角为30°且绷紧,小球A处于静止,对小球施加的最小的力等于     。 

试题详情

10.如图是甲乙两物体从同一地点沿同一方向运动的速度图线,其中t2=2t1,则 (   )

A.在t1 时刻乙物体在前,甲物体在后

B.甲的加速度比乙大

C.在t1时刻甲乙两物体相遇

D.在t2 时刻甲乙两物体相遇

试题详情

9.某物体做直线运动,物体的速度-时间图象如图所示,若初速度的大小为VO,末速度的大小为Vt,则在时间t内的平均速度:(  )

A.等于(V0+Vt)/2  ;

B.大于(V0+Vt)/2  ;

C.小于(V0+Vt)/2 ;

D.条件不足,无法判断。

试题详情

8.某作匀加速直线运动的物体,设它运动全程的平均速度是v1,运动到中间时刻的速度是v2,经过全程一半位置时的速度是v3,则下列关系中正确的是 (  )

A.v1>v2>v3  B.v1<v2=v3  C.v1=v2<v3 D.v1>v2=v3

试题详情


同步练习册答案