题目列表(包括答案和解析)

 0  169488  169496  169502  169506  169512  169514  169518  169524  169526  169532  169538  169542  169544  169548  169554  169556  169562  169566  169568  169572  169574  169578  169580  169582  169583  169584  169586  169587  169588  169590  169592  169596  169598  169602  169604  169608  169614  169616  169622  169626  169628  169632  169638  169644  169646  169652  169656  169658  169664  169668  169674  169682  447348 

14、(15分).长为L质量为M的木板A静止在光滑的水平桌面上,有一质量为m的小木块B以水平速度V0恰好落在木板A的左端,如图所示,木块B与木块A间的摩擦系数为μ,木块B可视为质点,试求:

  (1)A和B的加速度各是多少,方向如何?

  (2)当B运动到A长度的中点时,相对于A的速度是多少?                       

  (3)如果最后B恰好到达A的右端不落下来,则V0的值应是多大?

试题详情

13、(12分)子弹从枪口射出速度大小是30米/秒,某人每隔1秒竖直向上开一枪,假定子弹在升降过程中都不相碰,试求

  (1)空中最多能有几颗子弹?

  (2)设在t = 0时将第一颗子弹射出,在哪些时刻它和以后射出的子弹在空中相遇而过?

  (3)这些子弹在距原处多高的地方依次与第一颗子弹相遇?(不计空气阻力)

试题详情

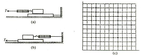
12、(13分)某同学在做“测定木板与木块间动摩擦因素”的实验时,设汁了两种实验方案:

  方案一:木板固定,用弹簧测力计拉动木块,如下图(a)所示.

 方案二:用弹簧测力计钩住木块,用力拉动木板,如下图(b)所示.除了实验必须的弹簧测力计、木块、木板、细线外,该同学还准备了若干重量均为2.00N的砝码.

(1)上述两种方案中,你认为更合理的方案是       ,理由是        

                     

(2)该同学在木块上加放砝码,改变木块对木板的压力,记录了5组实验数据,如下表所示

   实验次数
  1
  2
  3
  4
  O
   砝码/个数
  0
  1
  2
  3
  4
 砝码对木块压力/N
   0
  2.00
  4.00
  6.00
  8.00
  测力计读数/N
 1.50
  2.00
  2.50
  2.90
  3.50

请根据上述数据在坐标纸上(上图(c)中)作出摩擦力f和砝码对木块的压力F的关系图象(以F为横坐标).图象不过原点的原因是                 。由图象可知,木块的重力为      N.木块与木板间的动摩擦因数为      

试题详情

11、(8分)如图11(a)所示,小车放在斜面上,车前端栓有不可伸长的细线,跨过固定在斜面边缘的小滑轮与重物相连,小车后面与打点计时器的纸带相连。起初小车停在靠近打点计时器的位置,重物到地面的距离小于小车到滑轮的的距离。启动打点计时器,释放重物,小车在重物的牵引下,由静止开始沿斜面向上运动,重物落地后,小车会继续向上运动一段距离。打点计时器使用的交流电频率为50 Hz。图11(b)中a、b、c是小车运动纸带上的三段,纸带运动方向如箭头所示。

(a)
 

 

⑴根据所提供纸带上的数据,计算打c段纸带时小车的加速度大小为_________m/s2。(结果保留两位有效数字)

⑵打a段纸带时,小车的加速度是2.5 m/s2。请根据加速度的情况,判断小车运动的最大速度可能出现在b段纸带中的_________。

⑶如果取重力加速度10 m/s2,由纸带数据可推算出重物与小车的质量比为_________。

试题详情

10、如图所示,光滑水平面上放置质量分别为m和2m的四个木块,其中两个质量为m的木块间用一不可伸长的轻绳相连,木块间的最大静摩擦力是μmg。现用水平拉力F拉其中一个质量为2 m的木块,使四个木块以同一加速度运动,则轻绳对m的最大拉力为

A、    B、   

C、   D、

试题详情

9、如图3所示,在倾角为θ的固定光滑斜面上,质量为m的物体受外力F1F2的作用,F1方向水平向右,F2方向竖直向上。若物体静止在斜面上,则下列关系正确的是

A、F1sinθ+F2cosθmg sinθF2mg

B、F1cosθ+F2sinθmg sinθF2mg

C、F1sinθF2cosθmg sinθF2mg

D、F1cosθF2sinθmg sinθF2mg

试题详情

8、一物体由静止沿倾角为q的斜面下滑,加速度为a;若给此物体一个沿斜面向上的初速度vo,使其上滑,此时物体的加速度可能为

A、a        B、2a   

C、2gsinq-a     D、2gsinq+a

试题详情

7、如图4所示,物体受到的水平方向成30o角拉力F作用向左作匀速直线运动,则物体受到的拉力F与地面对物体的摩擦力的合力的方向是:(  )

   A、向上偏左    B、向上偏右

C、竖直向上    D、竖直向下

试题详情

6、如图所示,两木块的质量分别为m1m2,两轻质弹簧的劲度系数分别为k1k2,上面木块压在上面的弹簧上(但不拴接),整个系统处于平衡状态。现缓慢向上提上面的木块,直到它刚离开上面弹簧,在这过程中下面木块移动的距离为:(  )

Am1g/k1      B、m2g/k1

C、m1g/k2      D、m2g/k2

试题详情

5、如图所示,AB两物体叠放在一起沿倾角为θ的斜面加速下滑,并保持相对静止,已知它们的质量分别为mAmBAB之间、B与斜面之间的动摩擦因数分别为μ1μ2,则AB之间的摩擦力大小为(    )

A、0        B、μ1mAgcosθ 

 C、μ2mAgcosθ   D、mAgsinθ

试题详情


同步练习册答案