0  314640  314648  314654  314658  314664  314666  314670  314676  314678  314684  314690  314694  314696  314700  314706  314708  314714  314718  314720  314724  314726  314730  314732  314734  314735  314736  314738  314739  314740  314742  314744  314748  314750  314754  314756  314760  314766  314768  314774  314778  314780  314784  314790  314796  314798  314804  314808  314810  314816  314820  314826  314834  447090 

3.根据材料,完成下列问题。

城市中的湿地非常珍贵,有的湿地因为环境的变化自然消失了,还有些则是因为人为的原因而消失的。许多城市进行土地开发,把大片的湿地填掉了,破坏了湿地生态系统。在久居城市的人们眼中,“湿地”似乎是一个颇为专业的名词,同人们的生活相距遥远。“国家城市湿地公园”的出现,不仅丰富了城市公园的种类,而且其独特景观能让市民感受到湿地作为“地球之肾”的无限魅力。城市湿地公园是指纳入城市绿地系统规划的,适宜作为公园的天然湿地类型,通过合理的保护利用,形成集保护、科普、休闲等功能于一体的公园。

(1)材料中所说的城市湿地公园分布的规划属于城市规划中的           规划。

(2)在纷扰的城市中的湿地资源更显珍贵,因此,对国家城市湿地公园而言,保护和利用同样重要,湿地作为地球珍贵的环境资源,其作用主要有                   等。

(3)城乡规划可以促进城乡的可持续发展,城市湿地公园的建立有利于         

(4)城市规划的主要内容有                                          

                                                      

试题详情

2.读“兰州市略图”,完成下列问题。

(1)兰州市依山傍水,位于       谷地中,其发展被迫沿       延伸,形成      状形态。

(2)兰州市这种城市地域形态的优点是    

(3)造成兰州市地域形态的最主要因素是  (   )

A.矿产资源的分布        B.政治经济的发展

C.地形和河流的分布     D.交通运输的需要

试题详情

1.读图,完成下列问题。

(1)反映城市群体组织结构变化的是      图,其形态特征从散点状到连珠状再演变到     状。

(2)反映城市的内部结构演变的是      图。

(3)图A、B反映的是       现象的两种表现形式:

一是                     

二是                      

(4)图B中A工业区形成的原因可能是                  

试题详情

3.说明奥林匹克公园比赛场馆布局相对集中的理由。

章末检测

试题详情

2.简述2008北京奥运场馆的分布特点及好处。

试题详情

1.分析北京总体规划中为什么要在西部建设生态带?

试题详情

11.第29届夏季奥运会于2008年8月8日在北京举行。

材料一  《北京城市总体规划》(2004~2020年)北京城市发展目标确定为“国家首都、世界城市、文化名城和宜居城市”。新规划中提出构建“两轴-两带-多中心”的新城市空间格局。“两带”指“东部发展带”和“西部生态带”。

材料二  北京所在地区地形图

材料三  2008年奥运会北京比赛场馆分布图

材料四  奥林匹克公园面积约1 215公顷,其中包括760公顷的森林绿地、占地50公顷的中华民族博物馆以及占地405公顷的展览馆、体育场馆及奥运村。下表是奥林匹克公园内部分场馆介绍。★新建场馆;☆临时场馆

场馆名称
建筑面积(M2)
坐席数(个)
赛时功能
赛后功能
周边场所
国家体育场★
258 000
91 000
田径  足球
用于国际国内体育比赛和文化、娱乐活动
国家森林公园碧玉公园
国家游泳中心★
65000-80000
17 000
游泳跳水水球花样游泳
 
国家体育馆★
80 900
19 000
竞技体操蹦床、手球
将成为集体育竞赛、文化娱乐于一体,提供多功能服务的市民活动中心
国家会议中心击剑馆☆
27 000
 
击剑预决赛现代五项(击剑和射击)
 
奥林匹克森林公园曲棍球场☆
118 700
17 000
曲棍球
 
奥林匹克森林公园射箭场☆
92 200
5 000
射箭
 

[尝试命题]

试题详情

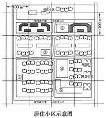
10.下图表示的是某城市一居住小区。小区南侧是一条城市次干道,北侧与另一小区之间是一条城市支路,小区的主、次入口分别设在城市的次干道和支路上。请分析该小区的具体情况,完成下列问题。

(1)小区规划建设一个幼儿园,应建在图中的    处,理由是

(2)该小区要建一处小学,应建在图中的      处,理由是

(3)小区的活动中心应建在     处,理由是

试题详情

9.读下图,完成下列问题。

(1)影响农村集市分布的因素有                     

                                    

(2)农村集市的形成有两种原因:一是               ,二是              

(3)在广大的农村地区,集市贸易不能每天进行,经济发展水平较高的地区,集市的时间间隔较       ,人口稀少的地区,间隔较             

(4)在集市上交换的商品主要有                  

        等。

试题详情

8.读图,完成下列问题。

(1)天津市交通干线分布呈      状,欧洲的许多大城市如                   等都有这种道路网。

(2)试分析天津火车站建立在市中心的利与弊。

利:                             

弊:                              

(3)天津市京津塘高速公路与外环线的东北段有一段是并列的,这种设计的优点有哪些?

试题详情


同步练习册答案